7513175131-2017
Поиск деталей
Дизель-генератор, система пневмостартерного пуска двигателя, предпусковой подогреватель;Diesel generator, engine pneumatic start-up system, pre-start heaterСистема питания двигателя;Fuel supply systemСистема выпуска отработавших газов;Exhaust systemСистема охлаждения двигателя;Engine cooling systemЭлектропривод тяговый;Traction electrical driveЗадний мост;Rear axleРама;FrameПодвеска;SuspensionПередняя ось, колеса и шины;Front axle, wheels and tiresРулевое управление;SteeringТормозная система;Brake systemПневматическая система;Pneumatic systemЭлектрооборудование;Electrical equipmentИнструмент и принадлежности;Tools and accessoriesСистема пожаротушения, централизованная авто- матическая система смазки "Lincoln";Fire fighting system, centralized automatic lubrication system "Lincoln"Кабина и оперение;Cabin and fenderingСистема видеообзора, система контроля загрузки и топлива;Video survey system, load and fuel control systemПлатформа;BodyОпрокидывающий механизм;Dumping mechanismПодшипники;Bearings

Установка электрооборудования (75131-2100022-14);Mounting of electrical equipment

Установка электрооборудования (75131-2100022-31);Mounting of electrical equipment

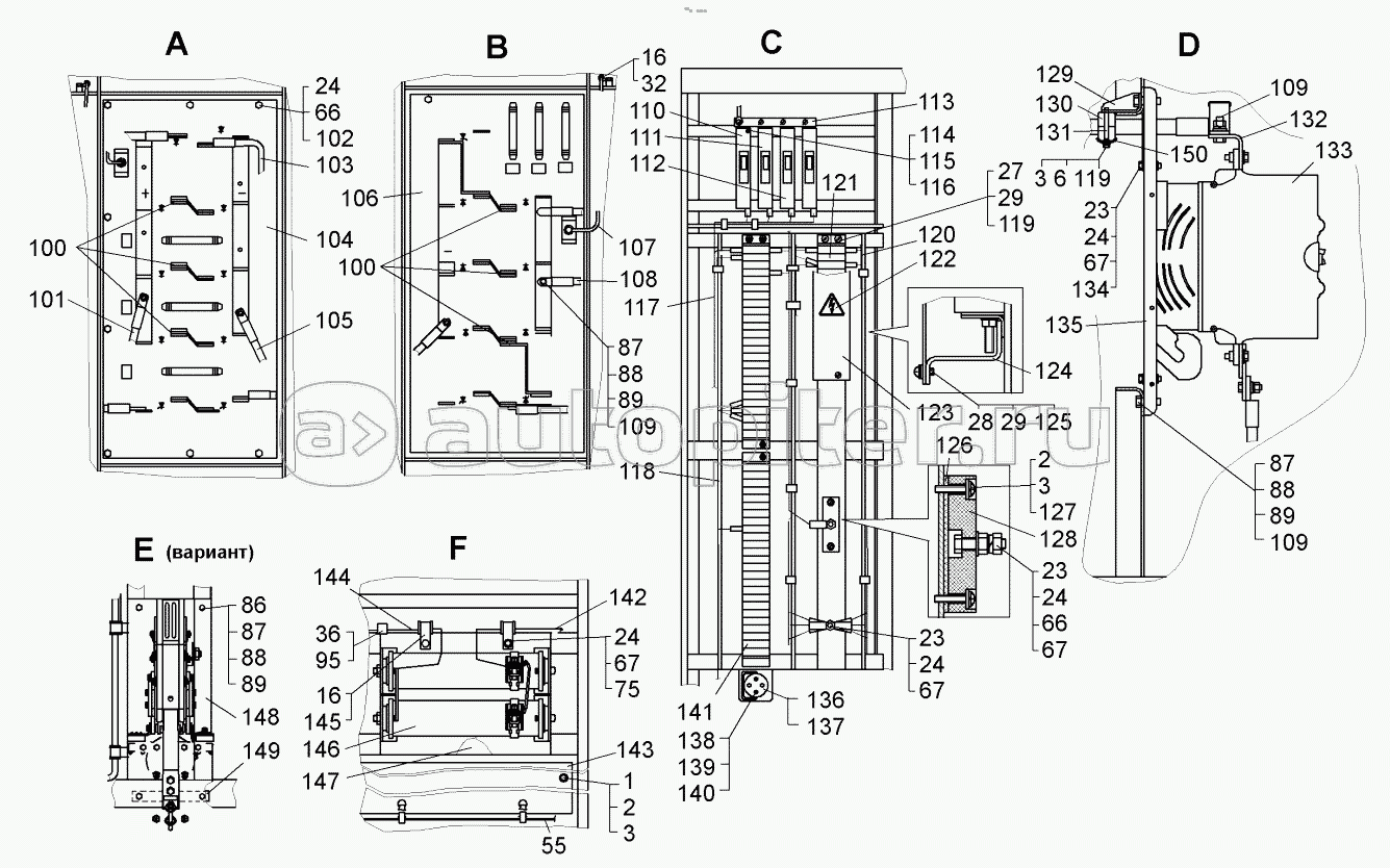
Шкаф с пускорегулирующей аппаратурой (главный вид) (75131-2112010-21);Cabinet with start-up control equipment

Шкаф с пускорегулирующей аппаратурой (75131-2112010-21);Cabinet with start-up control equipment

Шкаф с пускорегулирующей аппаратурой (главный вид) (75131-2112010-31);Cabinet with start-up control equipment

Шкаф с пускорегулирующей аппаратурой (75131-2112010-31);Cabinet with start-up control equipment

Вентилируемая тормозная установка в сборе (75139-2126002, 75139-2126002-01);Vented brake unit

Вентилируемая тормозная установка (75139-2126004, 75139-2126004-01);Vented brake unit

Вентилятор (75139-2126910, 75139-2126910-01);Fan

Секция резистора (75139-2126080-10);Resistor section

Установка вентилятора охлаждения тяговых электромашин (75131-2100040);Mounting of fan of haul electrical units cooling

Установка всасывающих воздухопроводов (75131-2100044-30);Mounting of suction air ducts

Установка нагнетательных воздухопроводов (75131-2100049-30);Mounting of pressure air ducts

Установка тормозной педали (75307-2100080-10);Mounting of brake pedal

Монтаж электрооборудования в кабине (75131-2100062-90);Mounting of electrical equipment in the cab

Силовые провода и детали их крепления на шасси (75131-2100060-40);Power cables and parts of their fastening at chassis