НефАЗ-96931-07nefaz-96931-07
Поиск деталей
Полуприцеп-цистерна в сбореОсиУстройство тягово-сцепноеРама (тележка, боковая защита, задний буфер)ПодвескаКолесаТормозаЭлектрооборудованиеПринадлежностиТехнологическое оборудованиеПринадлежностиЦистерна

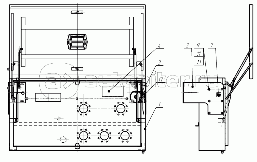
Установка технологического оборудования 96931-330, 96931-341, 96931-430, 96931-434

Установка сливно-наливного устройства 96931-330, 96931-331

Трубопровод 96931-05-8000060

Переходник 96895-05-8000060

Трубопровод 96931-05-8000090

Трубопровод 96931-05-8000100

Трубопровод 96931-8000080-330

Трубопровод 96931-05-8000140

Патрубок 96895-05-8000255

Установка системы управления донными клапанами 96931-8020010-341

Установка шкафа технологического оборудования 96931-05-8027010

Кронштейн установки шкафа 96931-04-8027020, 96931-04-8027030

Дверка (сварка) 96742-02-8027040

Корпус сварка 96742-02-8027060

Кронштейн в сборе 96895-04-8027070-24

Рычаг в сборе 96742-02-8027070